ホームズマンション売却マンション査定京都府京都市右京区洛西マンションNo.2

洛西マンションNo.2 資産価値は中古でいくら?売れない?売却査定で価格推移・相場を知る(無料)

京都府京都市右京区西院西田町1

参考査定価格 情報更新:2026年5月5日

1,148 万円 38m²の部屋

1,487 万円 38.16m²の部屋

\全国でマンション価格上昇中/

(LIFULL HOME'S独自データより)

本人/家族の居住用マンションですか?

質問に答えて査定依頼スタート

ホームズくん

LIFULL HOME'Sの
不動産査定サービスは

  • 5年連続 訪問査定率 No.1

※不動産会社のミカタ 2025年一括査定サイト訪問査定率ランキング

  • 【外観】

    【外観】

    1/4
  • 【外観】

    【外観】

    2/4
  • 【外観】

    【外観】

    3/4
  • 【周辺】サークルK 葛野大路高辻店まで299m 五条葛野大路を北へ上がったところにございます。駐車場広いです。

    【周辺】サークルK 葛野大路高辻店まで299m 五条葛野大路を北へ上がったところにございます。駐車場広いです。

    4/4

洛西マンションNo.2の売却をお考えのオーナー様向けの情報提供ページです。販売広告情報ではありません。

16社が査定受付け中! マンション売却に強い不動産会社に査定依頼

質問に答えて 査定依頼スタート

本人 / 家族の居住用マンションですか?

洛西マンションNo.2は売ったらいくら?参考査定価格

1,148万円 (30万円 / m²) 38m²の部屋

1,487万円 (39万円 / m²) 38.16m²の部屋

実際の査定価格や資産価値を保証するものではなく、LIFULL HOME'Sのデータベースを元に独自のロジックで計算した参考情報を表示しています。情報更新:2026年5月5日

売却後に「手元に残る金額」の目安(売却にかかる主な費用を差し引いた試算)

参考査定価格で売却した際の、主な費用と手元に残る金額の試算です。

項目 38m²の部屋の場合 38.16m²の部屋の場合
売却価格(想定)A 1,148万円 1,487万円
① 仲介手数料(税込) 44万4,840円 55万6,710円
② 印紙代 1万円 1万円
③ 抵当権抹消費用(概算) 3万円 3万円
主な費用合計(①+②+③) B 48万4,840円 59万6,710円
手元に残る金額(A - B) 1,099万2,008円 1,426万6,171円
  • 表示金額は現在の市場データに基づいた試算であり、実際にお客様の手元に残る金額を保証するものではありません
  • 仲介手数料:宅建業法によって設定された上限金額(消費税込)で試算しています。実際の金額は不動産会社にご確認ください
  • 抵当権抹消費用:登録免許税と司法書士報酬の合計で2〜3万円が一般的で、3万円で試算しています。抵当権を設定していない、またはすでに抹消済みの場合はかかりません

その他、状況により発生する費用の例

  • ローン一括返済に関わる費用
  • 引越し費用・不用品処分費
  • 譲渡所得税(売却益が出る場合)
  • 固定資産税・都市計画税(精算金)ほか

物件の市場価値や諸費用は、階数・眺望・内装の状態や状況によって大きく変動します。

経験豊富なプロによる無料査定で、より精度の高い価格を知ることができます。

実際はいくらで売れる? まずは査定依頼

本人 / 家族の居住用マンションですか?

洛西マンションNo.2周辺の中古マンション価格推移情報

洛西マンションNo.2周辺の中古マンション価格推移情報を紹介します。
京都市右京区の中古マンション(築10年/専有面積70m²の条件)の平均価格を独自のロジックで計算し、直近3年間の価格推移をグラフ化しました。値上がり有無を視覚的にご確認いただけます。 [情報更新:2026年5月9日]

京都市右京区のマンションの価格は直近の3年間で 4.54%程度 上昇しています。(3年前→2年前:-0.50%、 2年前→1年前:1.90%、 1年前→今年:3.11%

京都府の直近3年間の変動(11.14% )に比べ、やや低めの水準です。

価格(万円)

京都市右京区

京都府

16社が査定受付け中! マンション売却に強い不動産会社に査定依頼

質問に答えて 査定依頼スタート

本人 / 家族の居住用マンションですか?

仲介と買取の違いをチェック

価格の違い

物件の状況にもよりますが、仲介での売却価格の60%~80%くらいが買取価格の相場と言われています。

38m²の部屋の場合
売却方法 参考査定価格
仲介 1,148万円
買取 689万円 〜 919万円

成約までの期間の違い

買取は、不動産会社が間に入って物件の売買を行う「仲介」と違い、不動産会社が買主となるため、売却までの時間と手間を大きく短縮できます。

※買取をする別の不動産会社を紹介してもらう場合は仲介手数料が発生します

売却方法 成約までの期間 仲介手数料
仲介 概ね3〜6ヵ月 あり
買取 最短数日 なし※

16社が査定受付け中! マンション売却に強い不動産会社に査定依頼

質問に答えて 査定依頼スタート

本人 / 家族の居住用マンションですか?

洛西マンションNo.2は貸したらいくら?参考賃料

5.26万円 / 月 38m²の部屋

6万円 / 月 38.16m²の部屋

実際の賃料を保証するものではなく、LIFULL HOME'Sのデータベースを元に独自のロジックで計算した参考情報を表示しています。

洛西マンションNo.2の賃料掲載履歴(44件)

洛西マンションNo.2の賃料掲載履歴を表示しています。
掲載履歴とは、過去LIFULL HOME'Sに洛西マンションNo.2が賃貸物件として掲載された時点の情報を、履歴として一覧にまとめたものです。

※最終的な成約賃料とは異なる場合があります。また、将来の募集賃料を保証するものではありません

賃料 専有面積 間取り/所在階 掲載時期
5.2万円 / 月 38.16m² 2K / 4階 2025年10月〜2026年4月
5.2万円 / 月 38.16m² 2K / 5階 2025年12月〜2026年4月
5.2万円 / 月 38.00m² 2K / 2階 2025年10月〜2025年11月
5.2万円 / 月 38.16m² 2K / 4階 2025年1月〜2025年5月
5.2万円 / 月 38.00m² 2DK / 4階 2024年10月〜2025年1月
5.2万円 / 月 38.00m² 2K / 3階 2024年7月〜2024年10月
5.2万円 / 月 38.00m² 2K / 4階 2024年1月〜2024年6月
5.2万円 / 月 38.00m² 2K / 5階 2023年9月〜2024年1月
5.2万円 / 月 38.00m² 2K / 5階 2023年11月〜2024年1月
5.2万円 / 月 38.00m² 2K / 4階 2023年7月〜2023年10月
5.3万円 / 月 38.00m² 2K / 2階 2023年4月〜2023年6月
5.1万円 / 月 38.00m² 2K / 4階 2023年1月〜2023年3月
5.2万円 / 月 38.00m² 2K / 3階 2023年3月
5.1万円 / 月 38.00m² 2K / 5階 2022年10月〜2023年2月
5.1万円 / 月 35.00m² 2K / 5階 2022年5月〜2022年9月
5.1万円 / 月 38.00m² 2K / 4階 2022年6月〜2022年7月
5.2万円 / 月 38.00m² 2K / 4階 2021年11月〜2022年6月
5.2万円 / 月 38.00m² 2K / 5階 2022年4月〜2022年6月
5.2万円 / 月 38.00m² 2K / 4階 2022年4月〜2022年5月
5.2万円 / 月 35.00m² 2K / 4階 2021年11月〜2022年4月
5万円 / 月 38.00m² 2K / 5階 2021年4月〜2022年3月
5.2万円 / 月 38.16m² 2K / 3階 2021年8月〜2022年1月
5.1万円 / 月 38.00m² 2K / 4階 2021年4月〜2021年7月
5.2万円 / 月 38.16m² 2K / 2階 2021年4月〜2021年7月
5.1万円 / 月 38.00m² 2K / 4階 2021年4月〜2021年5月
5.5万円 / 月 38.16m² 2K / 5階 2020年7月〜2021年4月
5.5万円 / 月 38.00m² 2K / 4階 2020年8月〜2021年3月
5.4万円 / 月 38.16m² 2K / 5階 2021年3月
5.4万円 / 月 38.00m² 2K / 4階 2021年3月
5.5万円 / 月 38.16m² 2K / 2階 2021年3月
5.5万円 / 月 38.16m² 2K / 4階 2020年6月〜2020年12月
5.4万円 / 月 38.00m² 2K / 5階 2019年12月〜2020年2月
5.3万円 / 月 38.00m² 2K / 4階 2019年11月〜2020年1月
5.3万円 / 月 38.00m² 2K / 5階 2019年11月
5.2万円 / 月 38.16m² 2K / 5階 2019年9月〜2019年10月
5.3万円 / 月 38.16m² 2K / 4階 2019年9月〜2019年10月
5.3万円 / 月 35.00m² 2K / 4階 2019年3月〜2019年8月
5.3万円 / 月 38.00m² 2K / 4階 2018年5月〜2019年4月
5.4万円 / 月 38.00m² 2K / 3階 2019年2月〜2019年3月
5.4万円 / 月 38.16m² 2K / 3階 2018年8月〜2018年12月
5.3万円 / 月 38.00m² 2K / 2階 2018年3月〜2018年6月
5.3万円 / 月 38.00m² 2K / 4階 2018年4月〜2018年5月
9.5万円 / 月 40.00m² - / 1階 2017年12月〜2018年4月
5.3万円 / 月 38.00m² 2K / 5階 2018年2月〜2018年4月

実際にいくらで売れる? 収益物件の売却に強い不動産会社を探す

周辺のマンション 参考価格情報

マンション名 参考価格 所在地 築年月(築年数)
建物階建 / 総戸数
ウエストハイマンション西院 1,114万円 〜 1,432万円 京都府京都市右京区西院日照町65 1974年9月(築52年)
地上8階 / 全28戸
京都四条グランドハイツ 519万円 〜 2,697万円 京都府京都市右京区山ノ内池尻町6 1975年6月(築51年)
地上11階 / 全383戸
ホワイトグリーン本館神田 429万円 〜 975万円 京都府京都市右京区西京極郡町61 1977年12月(築49年)
地上4階 / 全20戸
サンコーポヒロタ 830万円 〜 1,139万円 京都府京都市右京区西京極郡町77 1975年11月(築51年)
地上4階 / 全9戸
加藤マンション 1,304万円 〜 1,935万円 京都府京都市右京区西京極郡町75 1977年1月(築50年)
地上4階 / 全 - 戸
西京極ハイツ 862万円 〜 1,777万円 京都府京都市右京区西院久保田町4-1 1976年4月(築51年)
地上8階 / 全162戸
西京極ガーデンハイツ 713万円 〜 1,928万円 京都府京都市右京区西京極畔勝町54-1 1974年5月(築53年)
地上8階 / 全217戸
長谷川ハイツ 295万円 〜 358万円 京都府京都市右京区西院久田町149-1 1977年3月(築50年)
地上4階 / 全22戸
天草マンション 923万円 〜 2,585万円 京都府京都市右京区西京極南衣手町72-1 1975年5月(築52年)
地上8階 / 全39戸
カサ・デ・ソーラ・四条 459万円 〜 664万円 京都府京都市右京区西院坤町82 1977年4月(築50年)
地上4階 / 全20戸
友禅ハイツ 877万円 〜 1,697万円 京都府京都市右京区西京極畔勝町63 1974年10月(築52年)
地上11階 / 全110戸
西京極グリーンハイツ 1,410万円 〜 2,087万円 京都府京都市右京区西京極郡沢町13-8 1978年4月(築49年)
地上7階 / 全 - 戸
田中ハイツ 739万円 〜 1,642万円 京都府京都市右京区西京極西池田町54 1977年2月(築50年)
地上4階 / 全24戸
ハイツモナーク 762万円 〜 1,186万円 京都府京都市右京区太秦安井松本町22-5 1978年1月(築49年)
地上4階 / 全15戸
ドルミイシダ 592万円 〜 1,319万円 京都府京都市右京区西京極西川町45-1 1976年5月(築51年)
地上4階 / 全14戸
サニーウイング西京極 968万円 〜 1,234万円 京都府京都市右京区西京極堤外町1-30 1977年12月(築49年)
地上4階 / 全10戸
ネオコーポラス島ノ内A棟 1,982万円 〜 2,806万円 京都府京都市中京区西ノ京島ノ内町21 1975年2月(築52年)
地上11階 / 全200戸
ネオコーポラス島ノ内B棟 1,844万円 〜 2,900万円 京都府京都市中京区西ノ京島ノ内町21 1975年2月(築52年)
地上11階 / 全200戸
西京極大門ハイツ 1,186万円 〜 2,428万円 京都府京都市右京区西京極大門町21 1976年2月(築51年)
地上7階 / 全190戸
月の輪コーポ 1,363万円 〜 2,195万円 京都府京都市中京区西ノ京月輪町4-16 1978年1月(築49年)
地上4階 / 全14戸
西院ハウス 997万円 〜 1,394万円 京都府京都市中京区壬生仙念町9 1976年9月(築50年)
地上4階 / 全20戸
洛西マンション 900万円 〜 1,355万円 京都府京都市下京区西七条西石ケ坪町14 1977年1月(築50年)
地上4階 / 全21戸
吉祥院ガーデンハイツB棟 1,184万円 〜 1,435万円 京都府京都市南区吉祥院西ノ庄向田町33-5 1974年4月(築53年)
地上9階 / 全413戸
コーポ御前 782万円 〜 2,033万円 京都府京都市下京区西七条赤社町32 1975年4月(築52年)
地上4階 / 全21戸
西小路トップハイツ 820万円 〜 1,611万円 京都府京都市中京区西ノ京小堀池町8-1 1977年1月(築50年)
地上4階 / 全23戸
嵐山ロイアルハイツ1号棟 817万円 〜 962万円 京都府京都市右京区梅津大縄場町6-5 1976年8月(築50年)
地上5階 / 全40戸
ロイヤルハイツアオキ 472万円 〜 648万円 京都府京都市中京区壬生森町28-3 1977年3月(築50年)
地上4階 / 全14戸
マンションパール 1,098万円 〜 1,707万円 京都府京都市下京区中堂寺庄ノ内町1-179 1978年1月(築49年)
地上4階 / 全8戸
嵐山ロイアルハイツ3号棟 814万円 〜 2,801万円 京都府京都市右京区梅津大縄場町6-6 1976年8月(築50年)
地上11階 / 全431戸
嵐山ロイアルハイツ4号棟 1,192万円 〜 1,897万円 京都府京都市右京区梅津大縄場町6-6 1976年8月(築50年)
地上5階 / 全431戸

マンション売却査定の流れ

マンション売却査定の流れを5つのステップで解説します。

  1. 1 不動産会社を選んで査定を依頼
  2. 2 不動産会社から査定結果が届く
  3. 3 不動産会社と 媒介契約締結 買主の募集開始
  4. 4 買付申込・買主と売買契約締結
  5. 5 決済・引渡し
  • このエントリーをはてなブックマークに追加

洛西マンションNo.2の売却に強い不動産会社 16社

洛西マンションNo.2の売却に強い不動産会社を紹介します。
高く売りたい、早く売りたいなどの希望をかなえ、売却を成功に導く一番の要因は、不動産会社+担当者の力量です。
最低3社~5社には査定依頼をして話を聞き、ご自身に合う不動産会社と信頼できる担当者を見つけてください。

洛西マンションNo.2から近い順に表示しています

センチュリー21三和不動産販売
物件から
1.0
  • 京都府京都市右京区西院坤町102番地J.BOX 1階
  • 阪急京都本線 西院駅 徒歩5分

創業30年、売専門スタッフがご対応致ます

弊社は京都市内を中心に不動産売買を取り扱っております。京都府京都市と周辺エリアの不動産に精通したベテランスタッフを中心に、不動産売却・買取の経験豊富なスタッフが皆様からのご相談に対応させて頂きます。サービス・知識・アドバイスを三本柱とした、私たち住まいの「コンシェルジュ」へお任せください。

社員画像

社員画像

  • 代表者鎌田 洋
  • 免許番号京都府知事(6)第10773号
LIXIL不動産ショップ 株式会社ホーリーホーム
物件から
1.1
  • 京都府京都市右京区西院巽町17番地2
  • 阪急京都本線 西院駅 徒歩3分

『ご満足頂ける結果を最優先に!』

相続・住み替え・空き家問題等、お困りのこと、お気軽にご相談くださいませ。
スピード感をもってご対応させて頂きます!秘密厳守・相談は無料です!
私たちスタッフは常にお客様と同じ立場、同じ目線で考えながら、お客様ひとりひとりと真剣かつ丁寧に向き合います。

社員画像

社員画像

  • 代表者堀 哲郎
  • 免許番号京都府知事(4)第13044号
株式会社福屋不動産販売 京都西店
物件から
1.4
  • 京都府京都市右京区西院平町25番地 ライフプラザ西大路四条1階
  • 阪急京都本線 西院駅 徒歩5分
  • 京福電気鉄道嵐山本線 西院駅 徒歩7分

創業60年!仕事が早い、だけじゃない。

当店は阪急西院駅の南側、西大路通り高辻の交差点角地にあり、駐車場も完備しております。京都市右京区、中京区、下京区、南区の不動産を得意としておりますが、近畿圏では80店舗以上、京都府下13店舗のネットワークがございますのでどのエリアもお気軽にご相談下さい。経験豊富で熱意あるスタッフがご対応致します。

社員画像

社員画像

  • 代表者瀧下 昌敏
  • 免許番号国土交通大臣(5)第6880号
エンリンクス株式会社
物件から
1.6
  • 京都府京都市右京区太秦安井池田町10-1 エレガンス21-107号室
  • 京都地下鉄東西線 太秦天神川駅 徒歩5分
  • 京福電気鉄道嵐山本線 嵐電天神川駅 徒歩6分

右京区に地域密着している不動産会社です!

生まれも育ちも右京区の代表が、地域密着でフットワークの軽い活動が行えることにより、強力なネットワークと地縁を活かして、地域の情報や特性などプラスアルファの付加価値を提供できることが他社にはない当社最大の強みです!住み替え・相続・空家・残置物撤去等、不動産でお困りの方はお気軽にご相談ください!

社員画像

社員画像

  • 代表者吉村 勲
  • 免許番号京都府知事(01)第014907号
センチュリー21プラス
物件から
1.6
  • 京都府京都市右京区西院上今田町15番地1F
  • 阪急京都本線 西院駅 徒歩8分
  • 京福電気鉄道嵐山本線 西大路三条駅 徒歩1分

新たな価値を創造し高価売却を目指します。

弊社は、不動産を通じて新たな価値をプラスする。を掲げて取り組んでおります。お客様の大切な不動産に新たな価値を創造し付加価値を付けて販売して参りたいと考えております。
弊社スタッフは大手不動産仲介会社出身者・大手ハウスメーカー出身者・建築業界出身者等経験豊富なスタッフが最適をご提案致します。

社員画像

社員画像

  • 代表者津田 祐介
  • 免許番号京都府知事(2)第14226号
株式会社アイリス 西院店
物件から
1.7
  • 京都府京都市中京区壬生仙念町14番地6 1階
  • 阪急京都本線 西院駅 徒歩1分

お客様の一番の相談相手を目指します!

不動産のご売却は、人生で幾度と無い大切なイベントです。
私たちがお客様の身近な相談役となって、スムーズなお手続きをサポートさせて頂きます。事務的な手続きをこなすだけの存在ではなく、お客様一人ひとりに深く寄り添う「不動産オーナーのパートナー」でありたいと強く願っています。

社員画像

社員画像

  • 代表者池田 亮太
  • 免許番号京都府知事(01)第014600号
阪急阪神不動産株式会社 京都桂営業所
物件から
2.6
  • 京都府京都市西京区桂野里町17 ミュー阪急桂内
  • 阪急京都本線 桂駅 徒歩1分
  • 阪急嵐山線 桂駅 徒歩1分

住宅開発100余年の実績の総合不動産会社

『阪急阪神の仲介 京都桂営業所』では 『世界の観光地 京都』の西の玄関口『桂』を中心に京都市内全域を営業活動エリアとし、顧客第一主義経験豊富な宅地建物取引士である当店営業員が、居住用のマンション・一戸建(新築・中古)・土地・収益用不動産・事業用不動産など、あらゆる不動産に関するご相談を承ります。

社員画像

社員画像

  • 代表者福井 康樹
  • 免許番号国土交通大臣(16)第000395号
三井住友トラスト不動産株式会社 京都桂センター
物件から
2.7
  • 京都府京都市西京区川島有栖川町3番地 オリエントビル1階・2階
  • 阪急京都本線 桂駅 徒歩1分

三井住友トラストグループの不動産会社です

三井住友トラストグループならではの幅広い情報ネットワークとコンサルティング力を生かし、安全・確実な不動産売買をお約束いたします。
居住用不動産はもちろん、相続不動産、投資・事業用不動産等のご売却をお手伝いいたします。ぜひ、無料査定をお申し込みください。

社員画像

社員画像

  • 代表者高岡 良典
  • 免許番号国土交通大臣免許(10)第003397号
株式会社ARM
物件から
3.2
  • 京都府京都市下京区堀川通四条下る四条堀川町286番地 EXELLENT.BLD.8F
  • 阪急京都本線 大宮駅 徒歩4分

【ARM】大手にはないスピード感が武器です。売却査定については、決裁権を持つ経営陣のみが直接査定するため、その場での即決・買取判断も可能。早期現金化もお任せください。感覚での査定は致しません。京都市内の最新成約データと統計に基づき、論理的に『売れる価格』を算出します。

店舗外観

店舗外観

  • 代表者瀬古 俊毅
  • 免許番号京都府知事(01)第015066号
株式会社日住サービス 京都五条店
物件から
3.6
  • 京都府京都市下京区新町通五条上る材木町132
  • 京都市営烏丸線 五条駅 徒歩5分
  • 阪急京都本線 烏丸駅 徒歩12分

1976年創業 信頼と実績の日住サービス

ご売却はもちろん買取りや買取保証に対応。賃貸も分譲マンションの1室から一戸建ての貸家まで対応します。リフォームも弊社の建装部にてワンストップでご提案。京町家や一棟収益マンション、収益ビルのご売却や管理、相続案件もご相談ください。空家巡回サービス有。

社員画像

社員画像

  • 代表者中村 友彦
  • 免許番号国土交通大臣(13)第002287号
関西不動産販売株式会社 京都桂川店
物件から
4.1
  • 京都府京都市南区久世上久世町798-1
  • JR東海道・山陽本線 桂川駅 徒歩10分

関西不動産販売【集客力】に自信があります

京阪神エリア・大阪北摂全域の不動産売却は関西不動産販売株式会社京都桂川店へお任せください!ご所有者様の意向を尊重し、不動産に関する多岐に渡るご相談に真摯に対応させていただきます。

  • 代表者徳山 大輔
  • 免許番号国土交通大臣(01)第009973号
近鉄不動産株式会社 京都営業所
物件から
4.2
  • 京都府京都市中京区烏丸通二条下る秋野々町513 京都第一生命ビル1F
  • 京都地下鉄東西線 烏丸御池駅 徒歩4分
  • 京都市営烏丸線 烏丸御池駅 徒歩4分

顧客満足度ランキング 2年連続1位!

私たち「近鉄の仲介」はオリコン顧客満足度(R)調査の「不動産仲介 マンション 売却」部門で2年連続総合1位を獲得しております。不動産のプロフェッショナルとして、スピーディに適切な売買支援、運用提案を行います。マンションだけでなく、京町家、事業用物件、戸建や土地についても安心して売却をご相談ください。

社員画像

社員画像

  • 代表者倉橋 孝壽
  • 免許番号国土交通大臣免許(11)第003123号
住友林業ホームサービス株式会社 京都店
物件から
4.3
  • 京都府京都市下京区立売中之町106 ヤサカ四条ビル2階
  • 阪急京都本線 烏丸駅 徒歩4分
  • 阪急京都本線 京都河原町駅 徒歩6分

顧客満足度ランキング 2冠受賞!

おかげさまで、私たち住友林業ホームサービスは2025年 オリコン顧客満足度(R) ランキング不動産仲介 「売却 戸建て」、「購入 マンション」の2つのランキングで第1位となりました。

店舗内観

店舗内観

  • 代表者櫻井 清史
  • 免許番号国土交通大臣(16)第000220号
株式会社Youハウジング
物件から
5.9
  • 京都府京都市西京区大原野上里北ノ町563-37
  • 阪急京都本線 東向日駅 徒歩21分
  • バス 上里北ノ町停下車 徒歩1分

300件以上売却実績があるスタッフが対応

人に欠かせない「衣・食・住」
その中でも「住」に関わることを業務としております。
お客様の生活を守る、
ご家族を守る大切なお家を
一人一人のニーズに沿ってご提供するべく日々精進して参ります。

不動産仲介、リフォーム、賃貸、買取、お好きな不動産のオンライン内覧可能!

空き家にお困りでは無いですか?

社員画像

社員画像

  • 代表者中村 優吾
  • 免許番号京都府知事(01)第014266号
センチュリー21 株式会社フロンティアホーム
物件から
8.3
  • 京都府京都市伏見区横大路下三栖辻堂町13
  • 京阪本線 中書島駅 徒歩17分
  • 京阪本線 伏見桃山駅 徒歩19分

販売力No.1!売却専門スタッフが担当!

弊社では「相続」「住みながらでも売れるのか?」「住み替えをしたいけれどどうしたらいいのか?」など売却に関するご質問を売却専門スタッフが丁寧にお答えいたします。

弊社のお家を高く・早く売ることには好評がありますので、是非フロンティアホームにお任せください!!

社員画像

社員画像

  • 代表者原口 大輔
  • 免許番号国土交通大臣免許(1)第10103号
株式会社大京穴吹不動産
物件から
370.6
  • 東京都渋谷区千駄ヶ谷4丁目19-18
  • JR中央線 千駄ケ谷駅 徒歩4分
  • 都営大江戸線 国立競技場駅 徒歩4分

「マンション」売却は「大京穴吹不動産」へ

全国32都道府県(2025年4月1日現在)で展開する弊社では、各エリアの売却に強みを持つ営業スタッフが、「売却戦略」と「高値売却チャレンジ価格」を
提案いたします。売買仲介査定はもちろん、住み替え提案、買い取り査定、賃料査定、リフォーム見積もりなど、多様なニーズにきめ細かくお応えいたします。

社員画像

社員画像

  • 代表者森本 秀樹
  • 免許番号国土交通大臣(08)第004139号

16社が査定受付け中! マンション売却に強い不動産会社に査定依頼

質問に答えて 査定依頼スタート

本人 / 家族の居住用マンションですか?

洛西マンションNo.2の物件概要

マンション名称 洛西マンションNo.2
所在地
京都府京都市右京区西院西田町1 地図を見る
交通
  • 京都地下鉄東西線 / 太秦天神川駅 徒歩18分(約1.41km)
  • 京福電気鉄道嵐山本線 / 嵐電天神川駅 徒歩17分(約1.30km)
  • 阪急京都本線 / 西院駅 徒歩20分(約1.60km)
  • 阪急京都本線 / 西京極駅 徒歩10分(約800m)
  • 京福電気鉄道嵐山本線 / 山ノ内駅 徒歩19分(約1.45km)
  • 京福電気鉄道嵐山本線 / 蚕ノ社駅 徒歩20分(約1.55km)

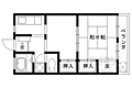
部屋タイプごとの間取り図

  • 洛西マンションNo.22K2階間取り

    2K 2階

    1/17
  • 洛西マンションNo.22K2階間取り

    2K 2階

    2/17
  • 洛西マンションNo.22K2階間取り

    2K 2階

    3/17
  • 洛西マンションNo.22K3階間取り

    2K 3階

    4/17
  • 洛西マンションNo.22K3階間取り

    2K 3階

    5/17
  • 洛西マンションNo.22K3階間取り

    2K 3階

    6/17
  • 洛西マンションNo.22K3階間取り

    2K 3階

    7/17
  • 洛西マンションNo.22K4階間取り

    2K 4階

    8/17
  • 洛西マンションNo.22K4階間取り

    2K 4階

    9/17
  • 洛西マンションNo.22K4階間取り

    2K 4階

    10/17
  • 洛西マンションNo.22K4階間取り

    2K 4階

    11/17
  • 洛西マンションNo.22K4階間取り

    2K 4階

    12/17
  • 洛西マンションNo.22K5階間取り

    2K 5階

    13/17
  • 洛西マンションNo.22K5階間取り

    2K 5階

    14/17
  • 洛西マンションNo.22K5階間取り

    2K 5階

    15/17
  • 洛西マンションNo.22K5階間取り

    2K 5階

    16/17
  • 洛西マンションNo.22K5階間取り

    2K 5階

    17/17
築年月(築年数) 1976年4月(築51年) 建物構造 RC(鉄筋コンクリート)
建物階建 地上5階建 総戸数 20戸
管理人 巡回 管理形態 -
用途地域 - 都市計画 -
土地権利 - 国土法届出 -
施工会社 - 物件種別 マンション
設備・条件 公営水道、都市ガス、下水、バイク置き場あり、駐輪場あり、タイル貼り

※最新の状態と異なる場合があります

※このページは過去のLIFULL HOME'S掲載情報を元に作成しています [情報更新:2026年5月15日]

洛西マンションNo.2の売却査定・参考価格相場だけでなく周辺施設情報を確認する

※参考査定価格・参考賃料の算出ロジックについて
LIFULL HOME'Sが独自に開発した 不動産参考価格算出システム を使用しています。

16社が査定受付け中! マンション売却に強い不動産会社にお問合せしよう

質問に答えて 査定依頼スタート

本人 / 家族の居住用マンションですか?

ホームズ不動産査定は、ご本人またはご家族が所有するマンションの売却を希望する、個人のお客様向けサービスです

以下の査定依頼はお断りしています。恐れ入りますがご了承ください。
弁護士、不動産業者など、物件所有者以外からの査定依頼
競売物件の価格調査など、売却を目的としない査定依頼

※査定依頼物件が、依頼者の所有物件ではないと弊社が判断した際、依頼内容を削除する場合があることをあらかじめご了承ください

ホームズ不動産査定 よくある質問

❓洛西マンションNo.2を売却する場合、査定相場はどのくらいですか?
洛西マンションNo.2の参考査定価格:1,148万円 〜 1,487万円
(LIFULL HOME'Sの独自データに基づき計算 情報更新:2026年5月5日)
参考査定価格・売却後に手元に残る金額の目安を見る
❓今月は、洛西マンションNo.2の売り時ですか?
洛西マンションNo.2がある京都市右京区のマンションの価格は直近の3年間で4.54%程度上昇しています。(3年前→2年前:-0.50%、2年前→1年前:1.90%、1年前→今年:3.11%)
京都府の直近3年間の変動(11.14%)に比べ、やや低めの水準です。
洛西マンションNo.2の査定を依頼する
情報更新:2026年5月9日
❓洛西マンションNo.2を査定依頼できる不動産会社は何社ですか?
サービス豊富な大手だけでなく、地元の売却事情に詳しい地場の会社など、洛西マンションNo.2の売却に強い不動産会社を16社以上掲載しています。
洛西マンションNo.2に対応できる会社情報を見る
納得できる売却には、ご自身の状況に合う不動産会社を見つけることが重要。
タイプの異なる複数の会社に査定を依頼し、話をして、査定価格だけでなく担当者も見極めることをおすすめします。
❓洛西マンションNo.2へのアクセスや最寄り駅を教えてください。
洛西マンションNo.2のアクセス情報は以下です。

【所在地】

京都府京都市右京区西院西田町1

【最寄り駅からのアクセス情報】

京都地下鉄東西線 / 太秦天神川駅 徒歩18分
京福電気鉄道嵐山本線 / 嵐電天神川駅 徒歩17分
阪急京都本線 / 西院駅 徒歩20分
阪急京都本線 / 西京極駅 徒歩10分
京福電気鉄道嵐山本線 / 山ノ内駅 徒歩19分
京福電気鉄道嵐山本線 / 蚕ノ社駅 徒歩20分
❓洛西マンションNo.2の建物構造や共用設備の特徴を教えてください。
洛西マンションNo.2の主な建物仕様や設備をまとめました。

【建物仕様】

築年月:1976年4月(築51年)
建物構造:RC(鉄筋コンクリート)
建物階建:地上5階建
総戸数:20戸

【設備・条件】

公営水道、都市ガス、下水、バイク置き場あり、駐輪場ありほか

洛西マンションNo.2の物件概要を見る

マンション価格上昇中の今こそ!

資産価格の下落のリスクも踏まえ

不動産のプロに無料で査定相談