ホームズマンション売却マンション査定京都府長岡京市ヴィーヴル長岡京

ヴィーヴル長岡京 資産価値は中古でいくら?売れない?売却査定で価格推移・相場を知る(無料)

京都府長岡京市長岡1丁目10-11

参考査定価格 情報更新:2026年5月5日

2,124 万円 60.75m²の部屋

3,476 万円 70.9m²の部屋

\全国でマンション価格上昇中/

(LIFULL HOME'S独自データより)

本人/家族の居住用マンションですか?

質問に答えて査定依頼スタート

ホームズくん

LIFULL HOME'Sの
不動産査定サービスは

  • 5年連続 訪問査定率 No.1

※不動産会社のミカタ 2025年一括査定サイト訪問査定率ランキング

  • 【外観】

    【外観】

    1/5
  • 【周辺】長岡第六小学校まで400m、徒歩…約5分

    【周辺】長岡第六小学校まで400m、徒歩…約5分

    2/5
  • 【周辺】長岡中学校まで850m、徒歩…約11分

    【周辺】長岡中学校まで850m、徒歩…約11分

    3/5
  • 【周辺】リバティ長岡まで350m、徒歩…約5分

    【周辺】リバティ長岡まで350m、徒歩…約5分

    4/5
  • 【周辺】西友まで400m、徒歩…約5分

    【周辺】西友まで400m、徒歩…約5分

    5/5

ヴィーヴル長岡京の売却をお考えのオーナー様向けの情報提供ページです。販売広告情報ではありません。

リアルな売出し価格・募集賃料を知る 今の市場価格を把握

ヴィーヴル長岡京の売出し価格/賃料情報です。(LIFULL HOME'Sの掲載情報より)
実際に募集中の価格情報のため、今の市場価値を把握することができ、ご自身の部屋ならどれぐらいの価値になるのか参考になります。
ただ、査定額は細かい条件によって変わるので、正確な価値は不動産会社に査定依頼するのが大切です。
※最終的な成約価格とは異なる場合があります。また、将来の売出し価格を保証するものではありません

階数 間取り図 賃料 / 価格等 専有面積 間取り 主要採光面 募集中ページ
1階 ヴィーヴル長岡京1階9.0万円

賃貸募集中

賃料 9万円

70.9m² 3LDK 物件詳細
センチュリー21レンタ

12社が査定受付け中! マンション売却に強い不動産会社に査定依頼

質問に答えて 査定依頼スタート

本人 / 家族の居住用マンションですか?

ヴィーヴル長岡京は売ったらいくら?参考査定価格

2,124万円 (35万円 / m²) 60.75m²の部屋

3,476万円 (49万円 / m²) 70.9m²の部屋

実際の査定価格や資産価値を保証するものではなく、LIFULL HOME'Sのデータベースを元に独自のロジックで計算した参考情報を表示しています。情報更新:2026年5月5日

売却後に「手元に残る金額」の目安(売却にかかる主な費用を差し引いた試算)

参考査定価格で売却した際の、主な費用と手元に残る金額の試算です。

項目 60.75m²の部屋の場合 70.9m²の部屋の場合
売却価格(想定)A 2,124万円 3,476万円
① 仲介手数料(税込) 76万6,920円 121万3,080円
② 印紙代 1万円 1万円
③ 抵当権抹消費用(概算) 3万円 3万円
主な費用合計(①+②+③) B 80万6,920円 125万3,080円
手元に残る金額(A - B) 2,043万1,440円 3,350万204円
  • 表示金額は現在の市場データに基づいた試算であり、実際にお客様の手元に残る金額を保証するものではありません
  • 仲介手数料:宅建業法によって設定された上限金額(消費税込)で試算しています。実際の金額は不動産会社にご確認ください
  • 抵当権抹消費用:登録免許税と司法書士報酬の合計で2〜3万円が一般的で、3万円で試算しています。抵当権を設定していない、またはすでに抹消済みの場合はかかりません

その他、状況により発生する費用の例

  • ローン一括返済に関わる費用
  • 引越し費用・不用品処分費
  • 譲渡所得税(売却益が出る場合)
  • 固定資産税・都市計画税(精算金)ほか

物件の市場価値や諸費用は、階数・眺望・内装の状態や状況によって大きく変動します。

経験豊富なプロによる無料査定で、より精度の高い価格を知ることができます。

実際はいくらで売れる? まずは査定依頼

本人 / 家族の居住用マンションですか?

ヴィーヴル長岡京周辺の中古マンション価格推移情報

ヴィーヴル長岡京周辺の中古マンション価格推移情報を紹介します。
長岡京市の中古マンション(築10年/専有面積70m²の条件)の平均価格を独自のロジックで計算し、直近3年間の価格推移をグラフ化しました。値上がり有無を視覚的にご確認いただけます。 [情報更新:2026年5月9日]

長岡京市のマンションの価格は直近の3年間で 5.26%程度 上昇しています。(3年前→2年前:2.28%、 2年前→1年前:-0.61%、 1年前→今年:3.55%

京都府の直近3年間の変動(11.14% )に比べ、やや低めの水準です。

価格(万円)

長岡京市

京都府

12社が査定受付け中! マンション売却に強い不動産会社に査定依頼

質問に答えて 査定依頼スタート

本人 / 家族の居住用マンションですか?

売出し価格の掲載履歴(3件)

売出し価格の掲載履歴から、売却相場が予想できます。
掲載履歴とは、過去LIFULL HOME'Sにヴィーヴル長岡京が売出し物件として掲載された時点の情報を、履歴として一覧にまとめたものです。

※最終的な成約価格とは異なる場合があります。また、将来の売出し価格を保証するものではありません

価格 専有面積 間取り/所在階 掲載時期
2,680万円 62.37m² 1LDK / 2階 2019年9月〜2019年11月
2,498万円 62.37m² 2LDK / 3階 2018年7月〜2018年10月
1,730万円 62.37m² 2LDK / 5階 2015年3月

仲介と買取の違いをチェック

価格の違い

物件の状況にもよりますが、仲介での売却価格の60%~80%くらいが買取価格の相場と言われています。

60.75m²の部屋の場合
売却方法 参考査定価格
仲介 2,124万円
買取 1,275万円 〜 1,700万円

成約までの期間の違い

買取は、不動産会社が間に入って物件の売買を行う「仲介」と違い、不動産会社が買主となるため、売却までの時間と手間を大きく短縮できます。

※買取をする別の不動産会社を紹介してもらう場合は仲介手数料が発生します

売却方法 成約までの期間 仲介手数料
仲介 概ね3〜6ヵ月 あり
買取 最短数日 なし※

12社が査定受付け中! マンション売却に強い不動産会社に査定依頼

質問に答えて 査定依頼スタート

本人 / 家族の居住用マンションですか?

ヴィーヴル長岡京は貸したらいくら?参考賃料

9.52万円 / 月 60.75m²の部屋

12.33万円 / 月 70.9m²の部屋

実際の賃料を保証するものではなく、LIFULL HOME'Sのデータベースを元に独自のロジックで計算した参考情報を表示しています。

ヴィーヴル長岡京の賃料掲載履歴(16件)

ヴィーヴル長岡京の賃料掲載履歴を表示しています。
掲載履歴とは、過去LIFULL HOME'Sにヴィーヴル長岡京が賃貸物件として掲載された時点の情報を、履歴として一覧にまとめたものです。

※最終的な成約賃料とは異なる場合があります。また、将来の募集賃料を保証するものではありません

賃料 専有面積 間取り/所在階 掲載時期
10万円 / 月 70.90m² 2LDK / 4階 2025年11月〜2026年4月
9万円 / 月 70.90m² 3LDK / 2階 2026年3月〜2026年4月
10万円 / 月 62.37m² 2LDK / 5階 2025年3月〜2025年8月
8万円 / 月 62.00m² 3LDK / 4階 2023年3月〜2023年4月
10万円 / 月 62.37m² 2LDK / 5階 2020年10月〜2021年1月
9万円 / 月 70.90m² 3LDK / 2階 2018年2月〜2018年11月
9万円 / 月 70.90m² 3LDK / 2階 2015年8月〜2016年2月
8万円 / 月 62.37m² 3LDK / 4階 2014年3月〜2014年5月
9.7万円 / 月 60.75m² 2LDK / 5階 2014年3月〜2014年4月
8万円 / 月 70.90m² 3LDK / 4階 2013年7月〜2014年1月
9.7万円 / 月 65.00m² 2LDK / 5階 2013年7月〜2013年9月
8万円 / 月 62.37m² 3LDK / 4階 2013年2月〜2013年3月
9万円 / 月 70.90m² 3LDK / 2階 2012年7月〜2012年12月
10万円 / 月 70.90m² 3LDK / 2階 2012年6月
9.3万円 / 月 59.24m² 3LDK / 3階 2011年7月
10.9万円 / 月 60.75m² 2LDK / 5階 2010年1月

実際にいくらで売れる? 収益物件の売却に強い不動産会社を探す

周辺のマンション 参考価格情報

マンション名 参考価格 所在地 築年月(築年数)
建物階建 / 総戸数
オーク長岡天神JOMO 934万円 〜 1,326万円 京都府長岡京市長岡1丁目3-9 1995年5月(築32年)
地上4階 / 全20戸
京琴館 884万円 〜 1,270万円 京都府長岡京市長岡2丁目18-14 1995年8月(築31年)
地上5階 / 全45戸
野村マンション 1,902万円 〜 3,637万円 京都府長岡京市開田1丁目13-1 1995年10月(築31年)
地上4階 / 全 - 戸
カーサベルディ 825万円 〜 1,368万円 京都府長岡京市長岡3丁目10-5 1993年11月(築33年)
地上4階 / 全35戸
ファースト 852万円 〜 1,264万円 京都府長岡京市天神1丁目11-9 1994年7月(築32年)
地上5階 / 全43戸
ソレイユ神足 1,984万円 〜 2,785万円 京都府長岡京市東神足1丁目3-7 1995年3月(築32年)
地上5階 / 全28戸
カーディナル長岡京 1,820万円 〜 2,160万円 京都府長岡京市今里4丁目11-21 1993年12月(築33年)
地上4階 / 全7戸
カーサ西向日 1,432万円 〜 2,625万円 京都府向日市上植野町角前10-1 1995年6月(築31年)
地上5階 / 全20戸
ピンクフィールド 1,799万円 〜 2,311万円 京都府長岡京市友岡2丁目2-13 1994年12月(築32年)
地上4階 / 全12戸
長岡京グリーンマンション 1,947万円 〜 3,142万円 京都府長岡京市今里更ノ町13-1 1993年11月(築33年)
地上7階 / 全52戸
ライオンズマンション長岡天神 1,945万円 〜 2,734万円 京都府長岡京市友岡西畑31 1994年3月(築33年)
地上5階 / 全24戸
藤和シティホームズ神足 1,974万円 〜 2,610万円 京都府長岡京市東神足2丁目14-1 1995年5月(築32年)
地上7階 / 全82戸
オークリッチ長岡天神 1,940万円 〜 2,721万円 京都府長岡京市下海印寺東条39 1997年2月(築30年)
地上3階 / 全17戸
ハイツ糀屋2 1,092万円 〜 1,996万円 京都府長岡京市下海印寺西条32 1994年4月(築33年)
地上4階 / 全 - 戸
オーセント長岡京 1,914万円 〜 2,857万円 京都府長岡京市下海印寺方丸2 1994年2月(築33年)
地上4階 / 全15戸
エル・パティオ西向日 2,310万円 〜 2,742万円 京都府向日市上植野町浄徳15 1995年2月(築32年)
地上3階 / 全17戸
メゾンドール奥文 1,819万円 〜 2,728万円 京都府長岡京市奥海印寺東条29-1 1993年4月(築34年)
地上4階 / 全 - 戸
アヴェルデ十ケ坪 1,364万円 〜 2,047万円 京都府向日市上植野町十ケ坪15-3 1994年3月(築33年)
地上4階 / 全28戸
レジェンド西向日 528万円 〜 1,171万円 京都府向日市鶏冠井町山畑21-30 1993年4月(築34年)
地上4階 / 全10戸
MOグロリーエイト 1,662万円 〜 2,314万円 京都府京都市伏見区羽束師菱川町193-1 1995年10月(築31年)
地上7階 / 全35戸
ヴァレドール 1,407万円 〜 2,612万円 京都府京都市伏見区羽束師菱川町168-1 1994年2月(築33年)
地上5階 / 全 - 戸
ベル・エトワール 1,792万円 〜 2,251万円 京都府向日市寺戸町天狗塚10 1993年6月(築33年)
地上5階 / 全20戸
BOAVISTA 1,572万円 〜 2,289万円 京都府乙訓郡大山崎町字下植野寺門6-1 1995年3月(築32年)
地上5階 / 全51戸
NKマンション 2,156万円 〜 3,070万円 京都府向日市森本町前田5-1 1997年1月(築30年)
地上6階 / 全 - 戸
ラ・セーヌFマンション 2,176万円 〜 3,047万円 京都府向日市森本町前田4-3 1993年5月(築34年)
地上6階 / 全18戸
カーサナカムラパート1 1,586万円 〜 2,315万円 京都府京都市伏見区羽束師菱川町60-2 1995年9月(築31年)
地上4階 / 全 - 戸
エスペランス 2,314万円 〜 3,023万円 京都府向日市寺戸町岸ノ下16-1 1996年3月(築31年)
地上4階 / 全20戸
エレガンス岡崎 845万円 〜 1,548万円 京都府向日市寺戸町中垣内1 1996年10月(築30年)
地上4階 / 全18戸
ピア・レジデンス羽束師 1,507万円 〜 3,049万円 京都府京都市伏見区羽束師古川町192 1995年4月(築32年)
地上5階 / 全43戸
メゾンドゥティユル 970万円 〜 1,221万円 京都府向日市寺戸町北前田29-2 1994年4月(築33年)
地上4階 / 全 - 戸

マンション売却査定の流れ

マンション売却査定の流れを5つのステップで解説します。

  1. 1 不動産会社を選んで査定を依頼
  2. 2 不動産会社から査定結果が届く
  3. 3 不動産会社と 媒介契約締結 買主の募集開始
  4. 4 買付申込・買主と売買契約締結
  5. 5 決済・引渡し
  • このエントリーをはてなブックマークに追加

ヴィーヴル長岡京の売却に強い不動産会社 12社

ヴィーヴル長岡京の売却に強い不動産会社を紹介します。
高く売りたい、早く売りたいなどの希望をかなえ、売却を成功に導く一番の要因は、不動産会社+担当者の力量です。
最低3社~5社には査定依頼をして話を聞き、ご自身に合う不動産会社と信頼できる担当者を見つけてください。

ヴィーヴル長岡京から近い順に表示しています

阪急阪神不動産株式会社 長岡営業所
物件から
0.3
  • 京都府長岡京市天神1丁目30-1
  • 阪急京都本線 長岡天神駅 徒歩1分
  • JR東海道・山陽本線 長岡京駅 徒歩11分

お客様と共に歩んできた総合不動産会社です

阪急阪神の沿線開発の歴史は100 年以上前19世紀末まで遡ります。阪急阪神不動産の創業は1952年(昭和27年)、大阪・梅田や阪急・阪神沿線を中心に、暮らしを豊かにする多彩な商業施設の運営や開発事業に携わってきました。一人ひとりに期待を超える価値をお届けし続けます。

社員画像

社員画像

  • 代表者福井 康樹
  • 免許番号国土交通大臣(16)第000395号
株式会社向日不動産販売
物件から
0.5
  • 京都府長岡京市馬場2丁目6番9号
  • JR東海道・山陽本線 長岡京駅 徒歩10分
  • 阪急京都本線 長岡天神駅 徒歩11分

地域密着48年の向日不動産グループ

長岡京市・向日市の不動産売却相談は(株)向日不動産販売へ!地域密着で行ってきた実績と経験を活かして、お客様のご希望に合わせた個別の売却プランを提案させて頂きます。即金買取(物件により買取できない場合もございます)・周囲に知られずに売りたいなど、早期で条件良くご売却できるよう、精一杯ご対応致します。

店舗内観

店舗内観

  • 代表者稲井 博士
  • 免許番号京都府知事(5)第12217号
株式会社福屋不動産販売 長岡京店
物件から
0.6
  • 京都府長岡京市開田2丁目9-22 ラルジュ天神通り101号
  • JR東海道・山陽本線 長岡京駅 徒歩5分
  • 阪急京都本線 長岡天神駅 徒歩6分

京都府エリア直営12店舗のネットワーク

家の事なら 熱意と仕事が早い!売るのも買うのもFUKUYAグループでお馴染みの福屋不動産販売 長岡京店にお任せ下さい!
テレビCMでの知名度とFUKUYAグループネットワークで、大切な不動産のご売却をお手伝い致します。お気軽にご相談下さい!

社員画像

社員画像

  • 代表者瀧下 昌敏
  • 免許番号国土交通大臣(5)第6880号

地元密着30年、ユニバにお任せ下さい!

乙訓地域でNO.1の物件取り扱い数・店舗数・スタッフ数を誇るユニバーサルホームサービスが、
全力であなたのご希望にお応えします(^^)/
お住み替え・相続・買取り等、不動産でお困りの方はお気軽にご相談ください。

社員画像

社員画像

  • 代表者濱岡 芳正
  • 免許番号京都府知事(07)第009738号
ピタットハウス長岡京店 有限会社ハローホーム長岡
物件から
0.7
  • 京都府長岡京市神足2丁目1-5
  • JR東海道・山陽本線 長岡京駅 徒歩1分
  • 阪急京都本線 長岡天神駅 徒歩9分

駅前立地を活かした集客力!

創業1999年の経験を活かし
お客様に安心・安全なお取引をご提案させていただきます。

全国648店舗!ピタットハウスのスケールメリットもご活用ください!
入札された価格がすぐに分かるマイホームオークションもおススメです!

宅地建物取引士である我々が、好条件の売却をアシストします!

社員画像

社員画像

  • 代表者小川 秀信
  • 免許番号京都府知事(06)第011162号
リヴ不動産販売株式会社
物件から
0.9
  • 京都府長岡京市今里西ノ口13番地1 ラ・グラシューズ1F
  • 阪急京都本線 長岡天神駅 徒歩18分

売却に強い乙訓密着の不動産会社

弊社は、長岡京市を中心に乙訓地域で不動産売却をサポートする地域密着の不動産会社です。仲介・買取・買取保証付き仲介など多様な売却方法に対応し、グループ会社によるリフォーム・リノベーションで物件価値を高め、高値売却を目指します。秘密厳守の非公開売却にも対応し、お客様に寄り添ったご提案を大切にしています。

社員画像

社員画像

  • 代表者曽我 亮太
  • 免許番号京都府知事(03)第013457号
株式会社Youハウジング
物件から
2.5
  • 京都府京都市西京区大原野上里北ノ町563-37
  • 阪急京都本線 東向日駅 徒歩21分
  • バス 上里北ノ町停下車 徒歩1分

300件以上売却実績があるスタッフが対応

人に欠かせない「衣・食・住」
その中でも「住」に関わることを業務としております。
お客様の生活を守る、
ご家族を守る大切なお家を
一人一人のニーズに沿ってご提供するべく日々精進して参ります。

不動産仲介、リフォーム、賃貸、買取、お好きな不動産のオンライン内覧可能!

空き家にお困りでは無いですか?

社員画像

社員画像

  • 代表者中村 優吾
  • 免許番号京都府知事(01)第014266号
関西不動産販売株式会社 京都桂川店
物件から
4.4
  • 京都府京都市南区久世上久世町798-1
  • JR東海道・山陽本線 桂川駅 徒歩10分

関西不動産販売【集客力】に自信があります

京阪神エリア・大阪北摂全域の不動産売却は関西不動産販売株式会社京都桂川店へお任せください!ご所有者様の意向を尊重し、不動産に関する多岐に渡るご相談に真摯に対応させていただきます。

  • 代表者徳山 大輔
  • 免許番号国土交通大臣(01)第009973号
株式会社ドリームホーム 1号線横大路店
物件から
4.6
  • 京都府京都市伏見区横大路芝生42
  • 京阪本線 中書島駅 横大路車庫前下車 徒歩1分

地域に詳しいスタッフが対応します。

(株)ドリームホームは2012年に京都の桂で設立し、2021年には東証一部上場企業の(株)AVANTIAのグループに参画しました。
現在、京都府と大阪府を中心に14店舗を展開。1号線横大路店では、所在地である京都市伏見区をお取引の主要エリアとしております。

社員画像

社員画像

  • 代表者中川 友二
  • 免許番号国土交通大臣(01)第010161号
センチュリー21 株式会社フロンティアホーム
物件から
5.2
  • 京都府京都市伏見区横大路下三栖辻堂町13
  • 京阪本線 中書島駅 徒歩17分
  • 京阪本線 伏見桃山駅 徒歩19分

販売力No.1!売却専門スタッフが担当!

弊社では「相続」「住みながらでも売れるのか?」「住み替えをしたいけれどどうしたらいいのか?」など売却に関するご質問を売却専門スタッフが丁寧にお答えいたします。

弊社のお家を高く・早く売ることには好評がありますので、是非フロンティアホームにお任せください!!

社員画像

社員画像

  • 代表者原口 大輔
  • 免許番号国土交通大臣免許(1)第10103号
株式会社ワイセレクション
物件から
6.3
  • 京都府京都市南区吉祥院中河原里西町26番地 イルソーレ京都西大路1B
  • JR東海道・山陽本線 西大路駅 徒歩15分

京都エリアの不動産はお任せください!

京都市南区・右京区・伏見区を中心とした地域密着の不動産会社です。
通常の不動産売買はもちろん、遺品整理や特殊清掃、空き家整理まで自社で幅広く対応可能。「困った」を「助かった」に変えるという理念のもと、売却から買取までお客様の多様なニーズに柔軟にお応えします。

社員画像

社員画像

  • 代表者勝山 仁雄
  • 免許番号京都府知事(01)第014583号
近鉄不動産株式会社 高槻営業所
物件から
10.8
  • 大阪府高槻市芥川町1丁目15-23 ヨシタケビル1階
  • JR東海道・山陽本線 高槻駅 徒歩3分
  • 阪急京都本線 高槻市駅 徒歩12分

顧客満足度ランキング 2年連続1位!

近鉄不動産は近鉄グループの一員としてのネットワークを活かし、お客様のお住まいや、お持ちの不動産のご売却のお手伝いをさせて頂きます。
豊富な事例に基づき、大切なご自宅の不動産の査定、ご売却の流れ、お買替え、買取等何でもお気軽にご相談ください。お役に立てるよう親身になってご相談にお応えさせて頂きます。

社員画像

社員画像

  • 代表者倉橋 孝壽
  • 免許番号国土交通大臣免許(11)第003123号

12社が査定受付け中! マンション売却に強い不動産会社に査定依頼

質問に答えて 査定依頼スタート

本人 / 家族の居住用マンションですか?

ヴィーヴル長岡京の物件概要

マンション名称 ヴィーヴル長岡京
所在地
京都府長岡京市長岡1丁目10-11 地図を見る
交通
  • JR東海道・山陽本線 / 長岡京駅 徒歩12分(約960m)
  • 阪急京都本線 / 長岡天神駅 徒歩5分(約400m)

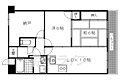
部屋タイプごとの間取り図

  • ヴィーヴル長岡京3LDK2階間取り

    3LDK 2階

    1/6
  • ヴィーヴル長岡京1SLDK2階間取り

    1SLDK 2階

    2/6
  • ヴィーヴル長岡京2SLDK3階間取り

    2SLDK 3階

    3/6
  • ヴィーヴル長岡京2SLDK4階間取り

    2SLDK 4階

    4/6
  • ヴィーヴル長岡京2LDK5階間取り

    2LDK 5階

    5/6
  • ヴィーヴル長岡京2SLDK5階間取り

    2SLDK 5階

    6/6
築年月(築年数) 1995年2月(築32年) 建物構造 RC(鉄筋コンクリート)
建物階建 地上5階建 総戸数 20戸
管理人 巡回 管理形態 全部委託
用途地域 第一種住居 都市計画 市街化区域
土地権利 所有権 国土法届出 不要
施工会社 - 物件種別 マンション
設備・条件 公営水道、都市ガス、下水、オートロック、エレベーター

※最新の状態と異なる場合があります

※このページは過去のLIFULL HOME'S掲載情報を元に作成しています [情報更新:2026年5月15日]

ヴィーヴル長岡京の売却査定・参考価格相場だけでなく周辺施設情報を確認する

※参考査定価格・参考賃料の算出ロジックについて
LIFULL HOME'Sが独自に開発した 不動産参考価格算出システム を使用しています。

12社が査定受付け中! マンション売却に強い不動産会社にお問合せしよう

質問に答えて 査定依頼スタート

本人 / 家族の居住用マンションですか?

ホームズ不動産査定は、ご本人またはご家族が所有するマンションの売却を希望する、個人のお客様向けサービスです

以下の査定依頼はお断りしています。恐れ入りますがご了承ください。
弁護士、不動産業者など、物件所有者以外からの査定依頼
競売物件の価格調査など、売却を目的としない査定依頼

※査定依頼物件が、依頼者の所有物件ではないと弊社が判断した際、依頼内容を削除する場合があることをあらかじめご了承ください

ホームズ不動産査定 よくある質問

❓ヴィーヴル長岡京を売却する場合、査定相場はどのくらいですか?
ヴィーヴル長岡京の参考査定価格:2,124万円 〜 3,476万円
(LIFULL HOME'Sの独自データに基づき計算 情報更新:2026年5月5日)
参考査定価格・売却後に手元に残る金額の目安を見る
❓今月は、ヴィーヴル長岡京の売り時ですか?
ヴィーヴル長岡京がある長岡京市のマンションの価格は直近の3年間で5.26%程度上昇しています。(3年前→2年前:2.28%、2年前→1年前:-0.61%、1年前→今年:3.55%)
京都府の直近3年間の変動(11.14%)に比べ、やや低めの水準です。
ヴィーヴル長岡京の査定を依頼する
情報更新:2026年5月9日
❓ヴィーヴル長岡京を査定依頼できる不動産会社は何社ですか?
サービス豊富な大手だけでなく、地元の売却事情に詳しい地場の会社など、ヴィーヴル長岡京の売却に強い不動産会社を12社以上掲載しています。
ヴィーヴル長岡京に対応できる会社情報を見る
納得できる売却には、ご自身の状況に合う不動産会社を見つけることが重要。
タイプの異なる複数の会社に査定を依頼し、話をして、査定価格だけでなく担当者も見極めることをおすすめします。
❓ヴィーヴル長岡京へのアクセスや最寄り駅を教えてください。
ヴィーヴル長岡京のアクセス情報は以下です。

【所在地】

京都府長岡京市長岡1丁目10-11

【最寄り駅からのアクセス情報】

JR東海道・山陽本線 / 長岡京駅 徒歩12分
阪急京都本線 / 長岡天神駅 徒歩5分
❓ヴィーヴル長岡京の建物構造や共用設備の特徴を教えてください。
ヴィーヴル長岡京の主な建物仕様や設備をまとめました。

【建物仕様】

築年月:1995年2月(築32年)
建物構造:RC(鉄筋コンクリート)
建物階建:地上5階建
総戸数:20戸

【設備・条件】

公営水道、都市ガス、下水、オートロック、エレベーター

ヴィーヴル長岡京の物件概要を見る

マンション価格上昇中の今こそ!

資産価格の下落のリスクも踏まえ

不動産のプロに無料で査定相談