ホームズマンション売却マンション査定北海道旭川市ロジェ3・2

ロジェ3・2 資産価値は中古でいくら?売れない?売却査定で価格推移・相場を知る(無料)

北海道旭川市3条通2丁目1386-727

参考査定価格 情報更新:2026年4月5日

493 万円 40.5m²の部屋

763 万円 44.4m²の部屋

\全国でマンション価格上昇中/

(LIFULL HOME'S独自データより)

本人/家族の居住用マンションですか?

質問に答えて査定依頼スタート

ホームズくん

LIFULL HOME'Sの
不動産査定サービスは

  • 5年連続 訪問査定率 No.1

※不動産会社のミカタ 2025年一括査定サイト訪問査定率ランキング

  • 【外観】

    【外観】

    1/4
  • 【エントランス】

    【エントランス】

    2/4
  • 【地図】

    【地図】

    3/4
  • 【周辺】イオン旭川駅前店

    【周辺】イオン旭川駅前店

    4/4

ロジェ3・2の売却をお考えのオーナー様向けの情報提供ページです。販売広告情報ではありません。

リアルな売出し価格・募集賃料を知る 今の市場価格を把握

ロジェ3・2の売出し価格/賃料情報です。(LIFULL HOME'Sの掲載情報より)
実際に募集中の価格情報のため、今の市場価値を把握することができ、ご自身の部屋ならどれぐらいの価値になるのか参考になります。
ただ、査定額は細かい条件によって変わるので、正確な価値は不動産会社に査定依頼するのが大切です。
※最終的な成約価格とは異なる場合があります。また、将来の売出し価格を保証するものではありません

階数 間取り図 賃料 / 価格等 専有面積 間取り 主要採光面 募集中ページ
3階 ロジェ3・23階5.0万円

賃貸募集中

賃料 5万円

41.43m² 2DK - 物件詳細
ビッグ旭川中央店 株式会社生活プロデュースリーシング

6社が査定受付け中! マンション売却に強い不動産会社に査定依頼

質問に答えて 査定依頼スタート

本人 / 家族の居住用マンションですか?

ロジェ3・2は売ったらいくら?参考査定価格

493万円 (12万円 / m²) 40.5m²の部屋

763万円 (17万円 / m²) 44.4m²の部屋

実際の査定価格や資産価値を保証するものではなく、LIFULL HOME'Sのデータベースを元に独自のロジックで計算した参考情報を表示しています。情報更新:2026年4月5日

売却後に「手元に残る金額」の目安(売却にかかる主な費用を差し引いた試算)

参考査定価格で売却した際の、主な費用と手元に残る金額の試算です。

項目 40.5m²の部屋の場合 44.4m²の部屋の場合
売却価格(想定)A 493万円 763万円
① 仲介手数料(税込) 33万円 33万円
② 印紙代 1,000円 5,000円
③ 抵当権抹消費用(概算) 3万円 3万円
主な費用合計(①+②+③) B 36万1,000円 36万5,000円
手元に残る金額(A - B) 455万9,013円 726万2,074円
  • 表示金額は現在の市場データに基づいた試算であり、実際にお客様の手元に残る金額を保証するものではありません
  • 仲介手数料:宅建業法によって設定された上限金額(消費税込)で試算しています。実際の金額は不動産会社にご確認ください
  • 抵当権抹消費用:登録免許税と司法書士報酬の合計で2〜3万円が一般的で、3万円で試算しています。抵当権を設定していない、またはすでに抹消済みの場合はかかりません

その他、状況により発生する費用の例

  • ローン一括返済に関わる費用
  • 引越し費用・不用品処分費
  • 譲渡所得税(売却益が出る場合)
  • 固定資産税・都市計画税(精算金)ほか

物件の市場価値や諸費用は、階数・眺望・内装の状態や状況によって大きく変動します。

経験豊富なプロによる無料査定で、より精度の高い価格を知ることができます。

実際はいくらで売れる? まずは査定依頼

本人 / 家族の居住用マンションですか?

ロジェ3・2周辺の中古マンション価格推移情報

ロジェ3・2周辺の中古マンション価格推移情報を紹介します。
旭川市の中古マンション(築10年/専有面積70m²の条件)の平均価格を独自のロジックで計算し、直近3年間の価格推移をグラフ化しました。値上がり有無を視覚的にご確認いただけます。 [情報更新:2026年4月9日]

旭川市のマンションの価格は直近の3年間で 2.53%程度 上昇しています。(3年前→2年前:-0.13%、 2年前→1年前:-1.94%、 1年前→今年:4.69%

北海道の直近3年間の変動(8.21% )に比べ、やや低めの水準です。

価格(万円)

旭川市

北海道

6社が査定受付け中! マンション売却に強い不動産会社に査定依頼

質問に答えて 査定依頼スタート

本人 / 家族の居住用マンションですか?

仲介と買取の違いをチェック

価格の違い

物件の状況にもよりますが、仲介での売却価格の60%~80%くらいが買取価格の相場と言われています。

40.5m²の部屋の場合
売却方法 参考査定価格
仲介 493万円
買取 296万円 〜 394万円

成約までの期間の違い

買取は、不動産会社が間に入って物件の売買を行う「仲介」と違い、不動産会社が買主となるため、売却までの時間と手間を大きく短縮できます。

※買取をする別の不動産会社を紹介してもらう場合は仲介手数料が発生します

売却方法 成約までの期間 仲介手数料
仲介 概ね3〜6ヵ月 あり
買取 最短数日 なし※

6社が査定受付け中! マンション売却に強い不動産会社に査定依頼

質問に答えて 査定依頼スタート

本人 / 家族の居住用マンションですか?

ロジェ3・2は貸したらいくら?参考賃料

4.63万円 / 月 40.5m²の部屋

6.02万円 / 月 44.4m²の部屋

実際の賃料を保証するものではなく、LIFULL HOME'Sのデータベースを元に独自のロジックで計算した参考情報を表示しています。

ロジェ3・2の賃料掲載履歴(4件)

ロジェ3・2の賃料掲載履歴を表示しています。
掲載履歴とは、過去LIFULL HOME'Sにロジェ3・2が賃貸物件として掲載された時点の情報を、履歴として一覧にまとめたものです。

※最終的な成約賃料とは異なる場合があります。また、将来の募集賃料を保証するものではありません

賃料 専有面積 間取り/所在階 掲載時期
5万円 / 月 41.43m² 2DK / 3階 2025年9月〜2026年4月
5万円 / 月 41.43m² 2DK / 7階 2026年2月〜2026年3月
5万円 / 月 41.43m² 2DK / 3階 2020年4月〜2021年1月
5万円 / 月 36.00m² 2DK / 4階 2019年8月〜2019年11月

実際にいくらで売れる? 収益物件の売却に強い不動産会社を探す

周辺のマンション 参考価格情報

マンション名 参考価格 所在地 築年月(築年数)
建物階建 / 総戸数
セクション103 391万円 〜 1,012万円 北海道旭川市1条通3丁目1707 1982年10月(築44年)
地上8階 / 全46戸
シャルム宮下 352万円 〜 568万円 北海道旭川市宮下通1丁目23-4 1983年5月(築44年)
地上5階 / 全 - 戸
レジデンス5条 407万円 〜 1,128万円 北海道旭川市5条通7丁目1615-7 1982年12月(築44年)
地上8階 / 全24戸
ロジェ7.6 390万円 〜 528万円 北海道旭川市7条通6丁目2428-13 1981年6月(築45年)
地上7階 / 全22戸
ルーベデンス六条 145万円 〜 603万円 北海道旭川市6条通7丁目31-1 1981年5月(築46年)
地上10階 / 全55戸
ロジェ111B 394万円 〜 517万円 北海道旭川市1条通11丁目113 1981年11月(築45年)
地上5階 / 全1戸
グリーンコーポ三条 700万円 〜 919万円 北海道旭川市3条通11丁目705-2 1983年8月(築43年)
地上7階 / 全 - 戸
シュロス大成 521万円 〜 728万円 北海道旭川市5条通12丁目1217-2 1984年7月(築42年)
地上9階 / 全 - 戸
グランビューエーコー 498万円 〜 1,049万円 北海道旭川市旭町1条2丁目439-70 1984年4月(築43年)
地上9階 / 全34戸
ロジェ513 701万円 〜 920万円 北海道旭川市5条通13丁目763-1 1982年11月(築44年)
地上10階 / 全46戸
ロジェ113 384万円 〜 689万円 北海道旭川市1条通13丁目2091-1 1984年5月(築43年)
地上8階 / 全23戸
サバーブいずみ 606万円 〜 1,068万円 北海道旭川市神居1条9丁目4-18 1981年1月(築46年)
地上4階 / 全24戸
レジデンス五条 499万円 〜 744万円 北海道旭川市5条通14丁目1584-2 1984年10月(築42年)
地上4階 / 全12戸
アーバンライフドラネコ 663万円 〜 870万円 北海道旭川市2条通15丁目673-4 1981年1月(築46年)
地上6階 / 全 - 戸
ルーベデンス東三条 574万円 〜 1,339万円 北海道旭川市東3条3丁目2-3 1983年5月(築44年)
地上8階 / 全32戸
グランドハイツ錦 580万円 〜 800万円 北海道旭川市錦町15丁目2379-64 1984年1月(築43年)
地上4階 / 全18戸
BIELU-V 286万円 〜 849万円 北海道旭川市豊岡4条2丁目5-26 1984年3月(築43年)
地上5階 / 全9戸
リバーデンス東光 522万円 〜 766万円 北海道旭川市東光5条1丁目6-1 1982年4月(築45年)
地上4階 / 全24戸
秋月マンション2 399万円 〜 562万円 北海道旭川市永山2条2丁目4-9 1984年2月(築43年)
地上4階 / 全8戸

マンション売却査定の流れ

マンション売却査定の流れを5つのステップで解説します。

  1. 1 不動産会社を選んで査定を依頼
  2. 2 不動産会社から査定結果が届く
  3. 3 不動産会社と 媒介契約締結 買主の募集開始
  4. 4 買付申込・買主と売買契約締結
  5. 5 決済・引渡し
  • このエントリーをはてなブックマークに追加

ロジェ3・2の売却に強い不動産会社 6社

ロジェ3・2の売却に強い不動産会社を紹介します。
高く売りたい、早く売りたいなどの希望をかなえ、売却を成功に導く一番の要因は、不動産会社+担当者の力量です。
最低3社~5社には査定依頼をして話を聞き、ご自身に合う不動産会社と信頼できる担当者を見つけてください。

ロジェ3・2から近い順に表示しています

株式会社土屋ホーム不動産 旭川支店
物件から
0.4
  • 北海道旭川市四条西2丁目土屋ホーム旭川4条ビル2F
  • JR函館本線 旭川駅 新町小学校前下車 徒歩1分

不動産の売買

売りたい人と買いたい人のお手伝いをします。土屋ホームの総合力にお任せ下さい。

店舗外観

店舗外観

  • 代表者所 哲三
  • 免許番号国土交通大臣免許(04)第007766号
株式会社ROA
物件から
1.6
  • 北海道旭川市神居一条2丁目1-22 エスパニア3 B-103
  • JR函館本線 旭川駅 3.3km

一人ひとりのご要望をぜひお聞かせください

社名「ROA(ロア)」はハワイ語で「最 高」「とても」「永 続」の意味。お客様に末永く信頼され、満足いただけるサービスを提供するため、希望だけでなく不安やお悩みも丁寧にお聞きし、一つひとつ解決しながらサポートいたします。

社員画像

社員画像

  • 代表者炭田 由香
  • 免許番号北海道知事上川(01)第001306号
ビッグ旭川大町店 株式会社生活プロデュースリーシング
物件から
2.3
  • 北海道旭川市大町三条8丁目1297-54
  • JR函館本線 旭川駅 大町2条8丁目下車 徒歩1分
  • JR富良野線 旭川駅 大町2条8丁目下車 徒歩1分

経験豊富なスタッフが対応!女性スタッフ可

当社は道北エリアを中心に不動産売買を行っている会社です。地域の特性に合わせて地元ならではの情報をご提供致します。売買取引経験の豊富なスタッフが揃っております。女性スタッフによる対応も可能ですので、女性も安心してご相談下さい。税金・ローン等、専門性の高いスタッフがお客様の悩みを一緒に解決致します。

店舗内観

店舗内観

  • 代表者堀籠 康弘
  • 免許番号北海道知事上川(03)第001193号
株式会社カワムラホーム
物件から
3.9
  • 北海道旭川市豊岡四条3丁目7-13
  • バス 旭川電気軌道 豊岡4条下車 徒歩1分

創業100年超、専門スタッフが多数在籍!

住宅・不動産業100年超の経験とネットワークでお客様の売却を強力にサポートいたします。売買だけでなくリノベーションにも力を入れていて北海道のリフォーム売上ランキング1位の実績もございます。販売活動には自信をもって取り組ませていただきます!

店舗内観

店舗内観

  • 代表者川村 健太
  • 免許番号北海道知事上川(08)第000877号
株式会社ハウステート
物件から
4.0
  • 北海道旭川市東光九条1丁目2-15 AGITO6 2-A
  • バス 東光8条1丁目停下車 徒歩2分

経験豊富なスタッフが誠実に対応します

常に「誠実」を信条に取り組み、お客様との信頼関係を築いてまいります。 相続相談、資産運用など専門性の高いスタッフがお客様のお悩みを一緒に解決致します。売買取引経験の豊富なスタッフが揃っておりますのでお気軽にご相談ください。
お客様のご要望に沿ったご提案を総合的にご提供いたします。

社員画像

社員画像

  • 代表者島口 浩明
  • 免許番号北海道知事上川(01)第001307号
株式会社杏栄
物件から
8.1
  • 北海道旭川市永山二条19丁目4-1
  • JR宗谷本線 永山駅 徒歩4分

不動産のお悩みご相談ください!

当社は旭川市内を中心に不動産売買の仲介、買取の不動産業務を行っている地域に密着した不動産会社です。お客様に安心してお任せいただけるよう、一人ひとりにあったご提案で不動産売却のサポートをいたします!お住み替え・相続・買取り等、不動産でお困りの方はお気軽にご相談ください。

社員画像

社員画像

  • 代表者中村 文彦
  • 免許番号北海道知事上川(09)第000774号

6社が査定受付け中! マンション売却に強い不動産会社に査定依頼

質問に答えて 査定依頼スタート

本人 / 家族の居住用マンションですか?

ロジェ3・2の物件概要

マンション名称 ロジェ3・2
所在地
北海道旭川市3条通2丁目1386-727 地図を見る
交通
  • JR函館本線 / 旭川駅 徒歩13分(約1.04km)
  • バス 旭川電気軌道バス4条通1丁目下車 徒歩3分(約240m)

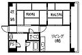
部屋タイプごとの間取り図

  • ロジェ3・21LDK2階間取り

    1LDK 2階

    1/8
  • ロジェ3・22DK2階間取り

    2DK 2階

    2/8
  • ロジェ3・22DK2階間取り

    2DK 2階

    3/8
  • ロジェ3・21LDK3階間取り

    1LDK 3階

    4/8
  • ロジェ3・21LDK3階間取り

    1LDK 3階

    5/8
  • ロジェ3・22DK3階間取り

    2DK 3階

    6/8
  • ロジェ3・22DK4階間取り

    2DK 4階

    7/8
  • ロジェ3・22DK7階間取り

    2DK 7階

    8/8
築年月(築年数) 1982年11月(築44年) 建物構造 SRC(鉄骨鉄筋コンクリート)
建物階建 地上9階建 総戸数 37戸
管理人 - 管理形態 -
用途地域 - 都市計画 -
土地権利 - 国土法届出 -
施工会社 - 物件種別 マンション
設備・条件 楽器不可、公営水道、都市ガス、下水、防犯カメラ、エレベーター、駐輪場あり

※最新の状態と異なる場合があります

※このページは過去のLIFULL HOME'S掲載情報を元に作成しています [情報更新:2026年4月15日]

ロジェ3・2の売却査定・参考価格相場だけでなく周辺施設情報を確認する

※参考査定価格・参考賃料の算出ロジックについて
LIFULL HOME'Sが独自に開発した 不動産参考価格算出システム を使用しています。

6社が査定受付け中! マンション売却に強い不動産会社にお問合せしよう

質問に答えて 査定依頼スタート

本人 / 家族の居住用マンションですか?

ホームズ不動産査定は、ご本人またはご家族が所有するマンションの売却を希望する、個人のお客様向けサービスです

以下の査定依頼はお断りしています。恐れ入りますがご了承ください。
弁護士、不動産業者など、物件所有者以外からの査定依頼
競売物件の価格調査など、売却を目的としない査定依頼

※査定依頼物件が、依頼者の所有物件ではないと弊社が判断した際、依頼内容を削除する場合があることをあらかじめご了承ください

ホームズ不動産査定 よくある質問

❓ロジェ3・2を売却する場合、査定相場はどのくらいですか?
ロジェ3・2の参考査定価格:493万円 〜 763万円
(LIFULL HOME'Sの独自データに基づき計算 情報更新:2026年4月5日)
参考査定価格・売却後に手元に残る金額の目安を見る
❓今月は、ロジェ3・2の売り時ですか?
ロジェ3・2がある旭川市のマンションの価格は直近の3年間で2.53%程度上昇しています。(3年前→2年前:-0.13%、2年前→1年前:-1.94%、1年前→今年:4.69%)
北海道の直近3年間の変動(8.21%)に比べ、やや低めの水準です。
ロジェ3・2の査定を依頼する
情報更新:2026年4月9日
❓ロジェ3・2を査定依頼できる不動産会社は何社ですか?
サービス豊富な大手だけでなく、地元の売却事情に詳しい地場の会社など、ロジェ3・2の売却に強い不動産会社を6社以上掲載しています。
ロジェ3・2に対応できる会社情報を見る
納得できる売却には、ご自身の状況に合う不動産会社を見つけることが重要。
タイプの異なる複数の会社に査定を依頼し、話をして、査定価格だけでなく担当者も見極めることをおすすめします。
❓ロジェ3・2へのアクセスや最寄り駅を教えてください。
ロジェ3・2のアクセス情報は以下です。

【所在地】

北海道旭川市3条通2丁目1386-727

【最寄り駅からのアクセス情報】

JR函館本線 / 旭川駅 徒歩13分
バス / ****駅 徒歩3分
❓ロジェ3・2の建物構造や共用設備の特徴を教えてください。
ロジェ3・2の主な建物仕様や設備をまとめました。

【建物仕様】

築年月:1982年11月(築44年)
建物構造:SRC(鉄骨鉄筋コンクリート)
建物階建:地上9階建
総戸数:37戸

【設備・条件】

楽器不可、公営水道、都市ガス、下水、防犯カメラほか

ロジェ3・2の物件概要を見る

マンション価格上昇中の今こそ!

資産価格の下落のリスクも踏まえ

不動産のプロに無料で査定相談